پلان (Plan) مجموعهای از طراحی یا دیاگرامهای دو بعدی مورد استفاده برای توصیف یک محل یا شی یا برای برقراری ارتباط ساختمانسازی یا دستور العملهای ساخت است. معمولاً پلانها روی کاغذ کشیده میشوند یا روی کاغذ چاپ میشوند اما آنها میتوانند به صورت یک فایل دیجیتالی نیز حضور داشته باشند. پلانها معمولاً برای اهداف تکنیکالی مانند معماری، مهندسی یا نقشه کشی استفاده میشوند.
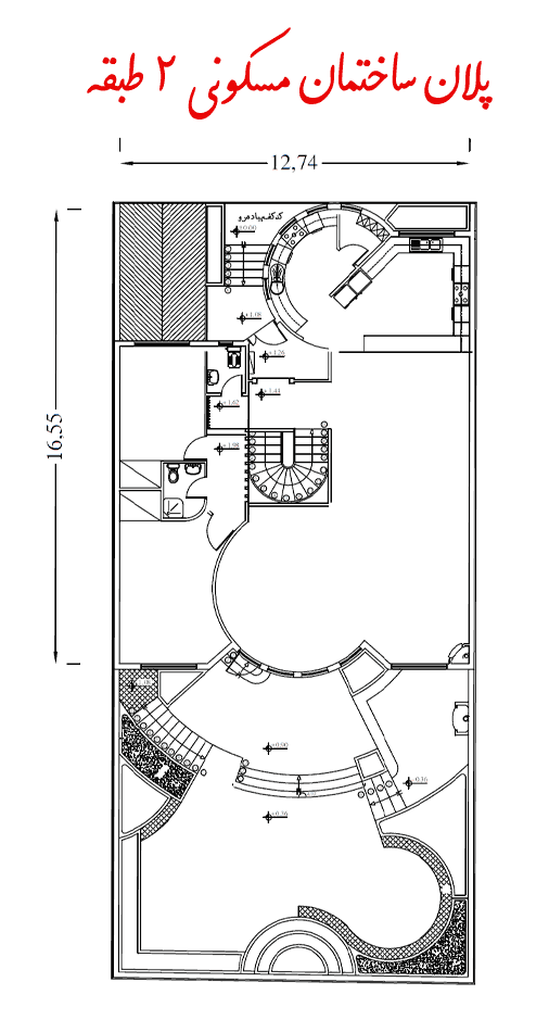
مشخصات پلان: نوع کاربری: مسکونی تعداد واحد: 1 تعداد طبقات: 2 تعداد خواب: 2 تعداد حمام: 1 موقعیت زمین: شمالی-جنوبی مساحت: 211 مترمربع طول: 12.74 متر عرض: 16.55 متر
مشخصات پلان:
پلانها میتوانند برای ارائه یا جهت گیری اهداف نیز مورد استفاده قرار گیرند. هدف نهایی از پلان، یا به تصویر کشیدن یک مکان یا یک شی موجود است یا برای انتقال اطلاعات کافی یک ذهن خلاق به یک سازنده یا تولیدکننده برای تحقق بخشیدن طرح مورد نظر میباشد.
نقشه کامل معماری با فرمت اتوکد (DWG) شامل موارد ذیل می باشد: پلان موقعیت پلان طبقات پلان مبلمان پلان تیرریزی نماهای ساختمان برش های طولی و عرضی دتایل های اجرایی
نقشه کامل معماری با فرمت اتوکد (DWG) شامل موارد ذیل می باشد:
تعداد مشاهده: 13766 مشاهده
کد فایل:6254
انتشار در:۱۳۹۸/۲/۱۶
حجم فایل ها:1.9 مگابایت
تعداد صفحات: نامشخص
زبان: فارسی
فرمت: (PDF) غیر قابل ویرایش
فهرست: نامشخص
منابع و مآخذ: نامشخص
جدول و نمودار: نامشخص
عکس و تصویر: دارد
محتوای فایل: PDF، CAD/DWG
نقشه کاربری اراضی و منطقهبندی شهر کرمان
قیمت : 20,000 تومان
توضیحات بیشتر دریافت فایل
برنامه زمانبندی پروژه شبکه گازرسانی
قیمت : 100,000 تومان
فایل آماده 3DMAX طراحی داخلی (پروژه شماره 6)
قیمت : 70,000 تومان
فایل آماده 3DMAX طراحی داخلی (پروژه شماره 5)
قیمت : 90,000 تومان
فایل آماده 3DMAX طراحی داخلی (پروژه شماره 4)
قیمت : 50,000 تومان
فایل آماده 3DMAX طراحی داخلی (پروژه شماره 3)
فایل آماده 3DMAX طراحی داخلی (پروژه شماره 2)
فایل آماده 3DMAX طراحی داخلی (پروژه شماره 1)
تحقیق آشنایی با پل های قوسی
قیمت : 52,000 تومان
تحقیق آشنایی با جوش co2
قیمت : 45,000 تومان
تحقیق آشنایی با پل های کابلی
پروپوزال اقامتگاه بومگردی در جزیره هرمز با رویکرد انعطاف پذیری